0530 305 44 22
makinefimak@gmail.com
Anasayfa
KURUMSAL
Hakkımızda
Kalite Politikamız
HİZMETLERİMİZ
REFERANSLAR
İLETİŞİM
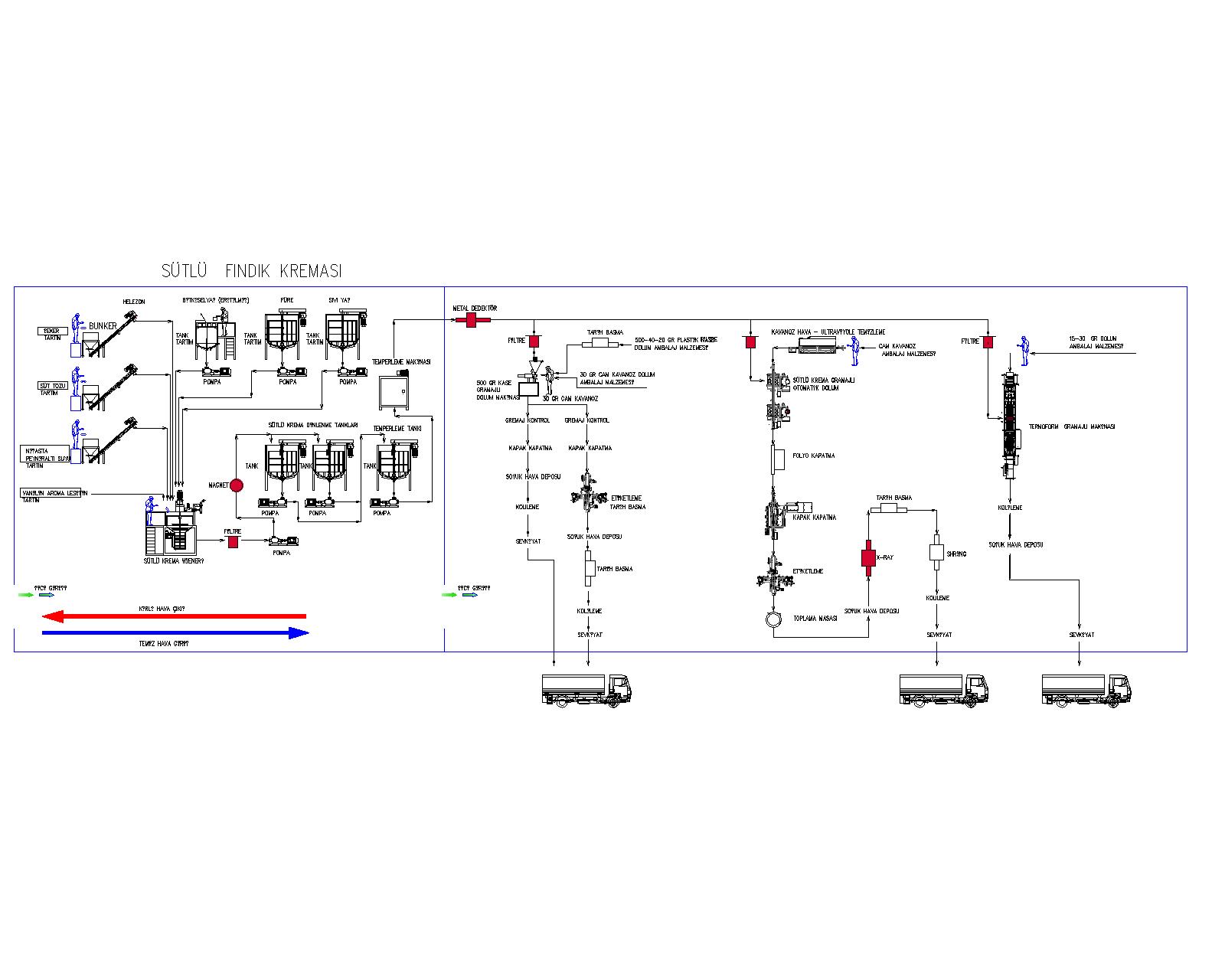
Krema Üretim Prosesleri
Anasayfa
Ürünlerimiz
Krema Üretim Prosesleri
Krema Üretim Prosesleri
DETAYLAR VE TEKNİK BİLGİ
ÜRÜN FOTOĞRAFLARI
VIDEO
Diğer Ürünler
Fındık, Fıstık Püre Hatları
İnceltici
Fındık, Fıstık Püre Hatları
İnceltici Eleği
Fındık, Fıstık Püre Hatları
Ön Ezici
Fındık, Fıstık Püre Hatları
Püre Tankı
Fındık Kırma Fabrikaları
Fındık Kırma Makinesi
Fındık Kırma Fabrikaları
İç Fındık Kabuk Ayırma Vantilatörü
Fındık Kırma Fabrikaları
Kabuklu Fındık Eleme
Fındık Kırma Fabrikaları
Naturel Eleme
Fındık Kırma Fabrikaları
Naturel Fındık Ön Temizleme Sistemleri
Kavurma Makineleri
Foy 500 Mini Kavurma Fırını
Kavurma Makineleri
Foy 1000 Kavurma Fırını
Krema Üretim Hatları
Krema Ön Hazırlama Mikseri
Krema Üretim Hatları
Krema Stok Tankları
Krema Üretim Hatları
Krema Wieneri
Krema Üretim Hatları
Krema Üretim Prosesleri
Şekerli ve Şekersiz Fındık ,Fıstık Hatları
Şekerli ve Şekersiz Fındık,Fıstık Hatları -Butik Şekerli Fıstık,Fındık Makinesi
Elek Sistemleri
Vibrasyonlu Toz Eleği
Yağ Presi
Yağ Çıkarma Presi
Zar Soyma Makineleri
Foy 528 Zar Soyma Makinesi
Zar Soyma Makineleri
Havalı Zar Soyma Makineleri
Zar Soyma Makineleri
Paspaslı Zar Soyma Makineleri
Tartım Dolum Makineleri
Big Bag ve Çuval Dolum Makinesi
Entegre Tesisleri
Fındık Dilme Hattı
Entegre Tesisleri
Fındık, Fıstık Kıyma Hattı
Entegre Tesisleri
Fındık Un Hatları
Entegre Tesisleri
Kıyma Makinesi
Entegre Tesisleri
Rotasyonlu Kıyma Elekleri
Fındık, Fıstık Püre Hatları
Püre Hatları
Entegre Tesisleri
Seçme Bantları
Temizleme Hatları
Kabuklu Fındık Temizleme ve Yıkama Hattı
Entegre Tesisleri
Un Makinesi
Konveyörler
Konveyörler
Danışmanlık
Danışmanlık
Entegre Tesisleri
Z Elevatör